VIRGO POTENS PERFETTO BILOCALE VISTA MARE TERMOAUTONOMO CANTINA ASCENSORE
85.000 €
Dettagli
Descrizione
***SESTRI VIRGO POTENS***
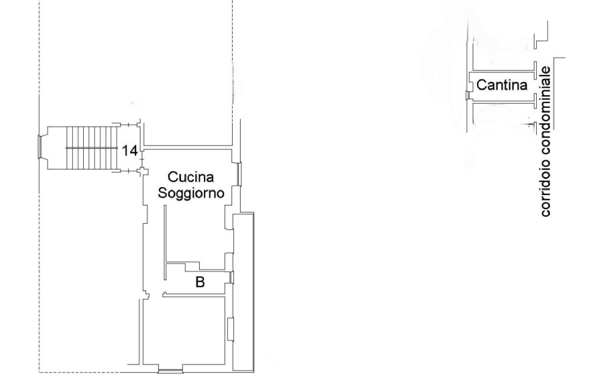
In ottimo contesto tranquillo e ben servito, a pochi minuti dal centro e a pochi passi dal capolinea dell’autobus, proponiamo in vendita esclusivo moderno bilocale mq 66 dotato di balconata e cantina,
L’appartamento situato ad un penultimo piano con ascensore è di recente ristrutturazione, pronto da abitare, caratterizzato da spaziosi ambienti soleggiati e ben distribuiti.
L’ingresso introduce alla zona giorno composta da soggiorno con cucina arredata a vista da cui è possibile accedere ad una bella balconata, mentre la zona notte offre una grande camera matrimoniale con suggestiva vista mare ed un funzionale bagno finestrato dotato di box doccia.
La soluzione è dotata di riscaldamento autonomo certificato, aria condizionata, impianto elettrico sfilabile, porta blindata e infissi alluminio in doppio vetro.
Completa la proprietà una grande cantina nei fondi del palazzo.
La posizione strategica rende questa soluzione ideale sia come abitazione principale, sia come ottimo investimento.
Per fissare un appuntamento o per maggiori informazioni contattaci subito!
FIN REAL ESTATE
TEL. 010 30 46 981 / CELL. 345 455 58 78
Via Sestri 146r
sestri@finreal.it
www.finreal.it














































